SENDO57
1600
m² a construir
Vivienda
Tipología
En ejecución
Estado
6
Cantidad de pisos
Desarrollamos y construimos SENDO57, un edificio de viviendas de 6 pisos ubicado en calle Callao 557. Cuenta con unidades de 1, 2 y 3 dormitorios, terraza con quincho, solarium de uso común y cocheras ubicadas en el subsuelo. Todos los departamentos poseen ventilación cruzada y amplios balcones. Este proyecto fue pensado con el fin de alcanzar el máximo confort y bienestar de sus habitantes.  

UNIDADES
PISOUNIDADTIPO DE UNIDADORIENTACIÓNM2 CUBIERTOSM2 TOTALESPLANTA
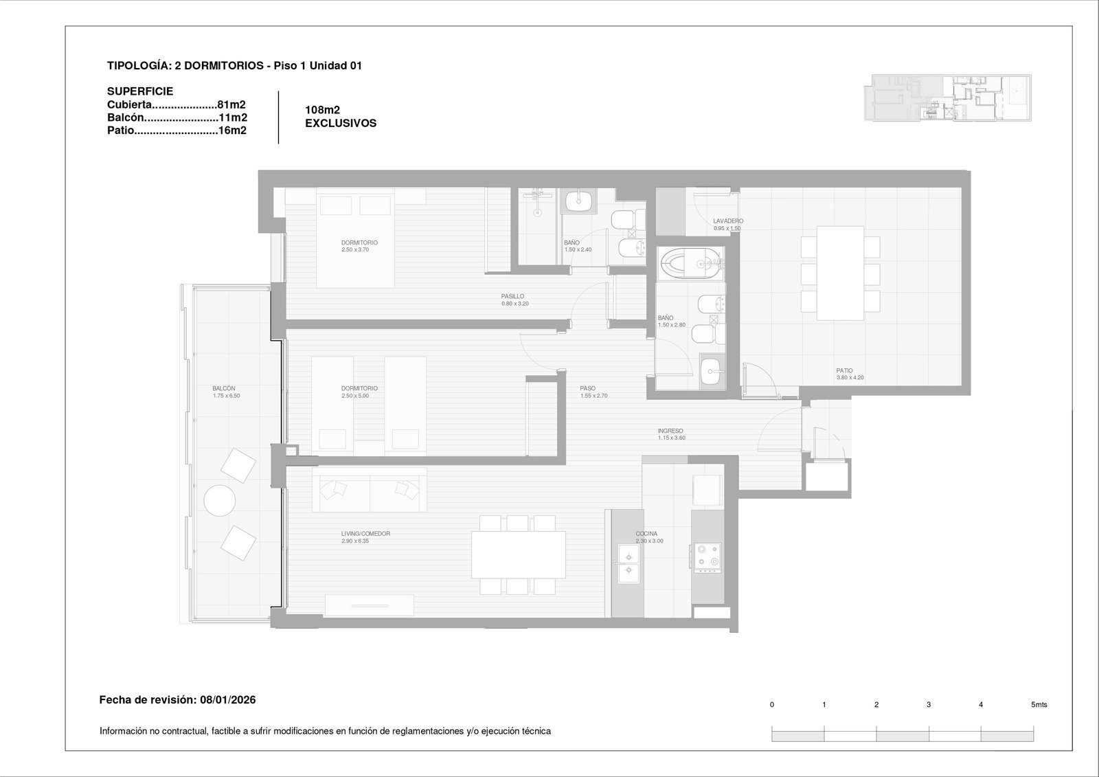
101-012 Dormitorios 2 Dormitorios Frente81 M2108 M2 VER PLANTA
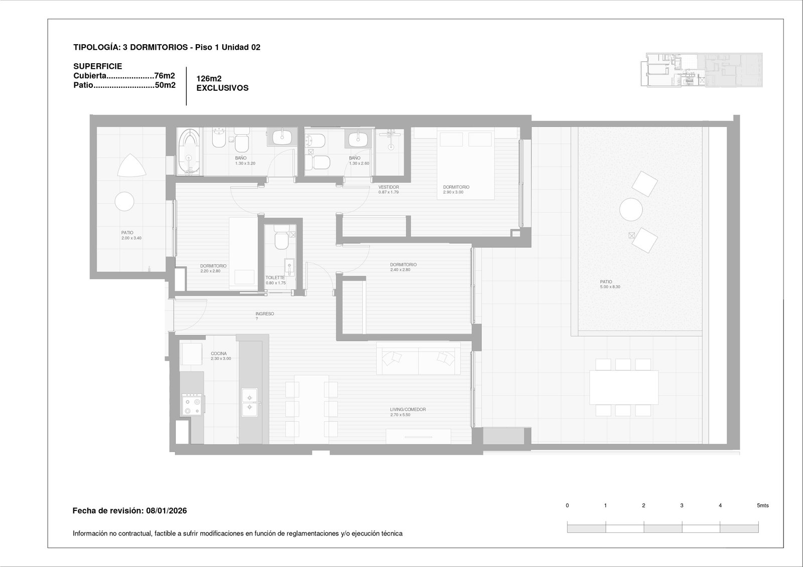
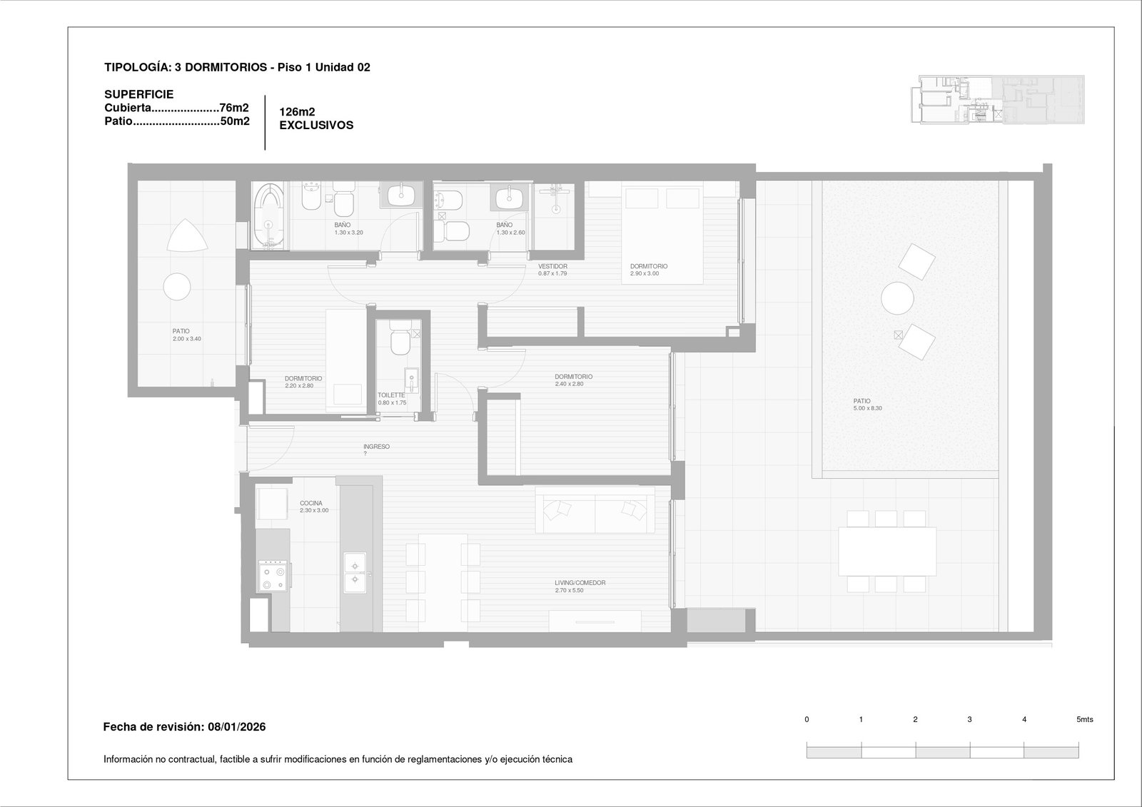
101-023 Dormitorios 3 Dormitorios Contrafrente76 M2126 M2 VER PLANTA
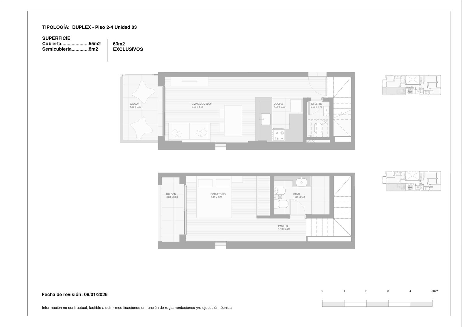
202-031 Dormitorio Dúplex 1 Dormitorio Dúplex Frente55 M263 M2 VER PLANTA
404-031 Dormitorio Dúplex 1 Dormitorio Dúplex Frente55 M263 M2 VER PLANTA
505-022 Dormitorios 2 Dormitorios Contrafrente74 M282 M2 VER PLANTA
606-013 Dormitorios 3 Dormitorios Frente78 M289 M2 VER PLANTA
606-022 Dormitorios 2 Dormitorios Contrafrente74 M282 M2 VER PLANTA
707-01Terraza Exclusiva Terraza Exclusiva Frente29 M279 M2 VER PLANTA
PB00-01Local Local Frente26 M226 M2 VER PLANTA
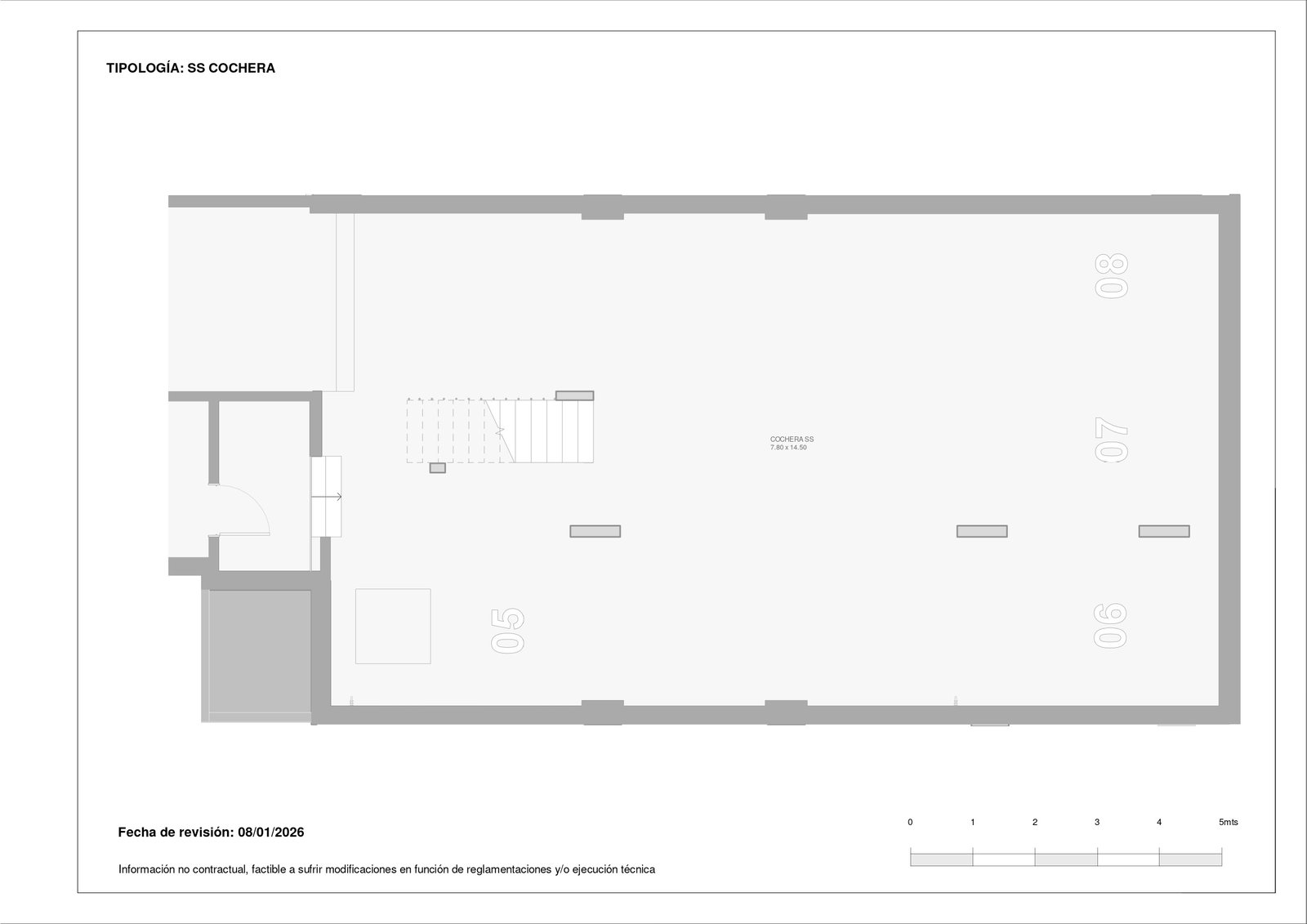
000-02-03Espacio p/Estacionar Espacio p/Estacionar Interno13 M213 M2 VER PLANTA
000-02-04Espacio p/Estacionar Espacio p/Estacionar Interno13 M213 M2 VER PLANTA
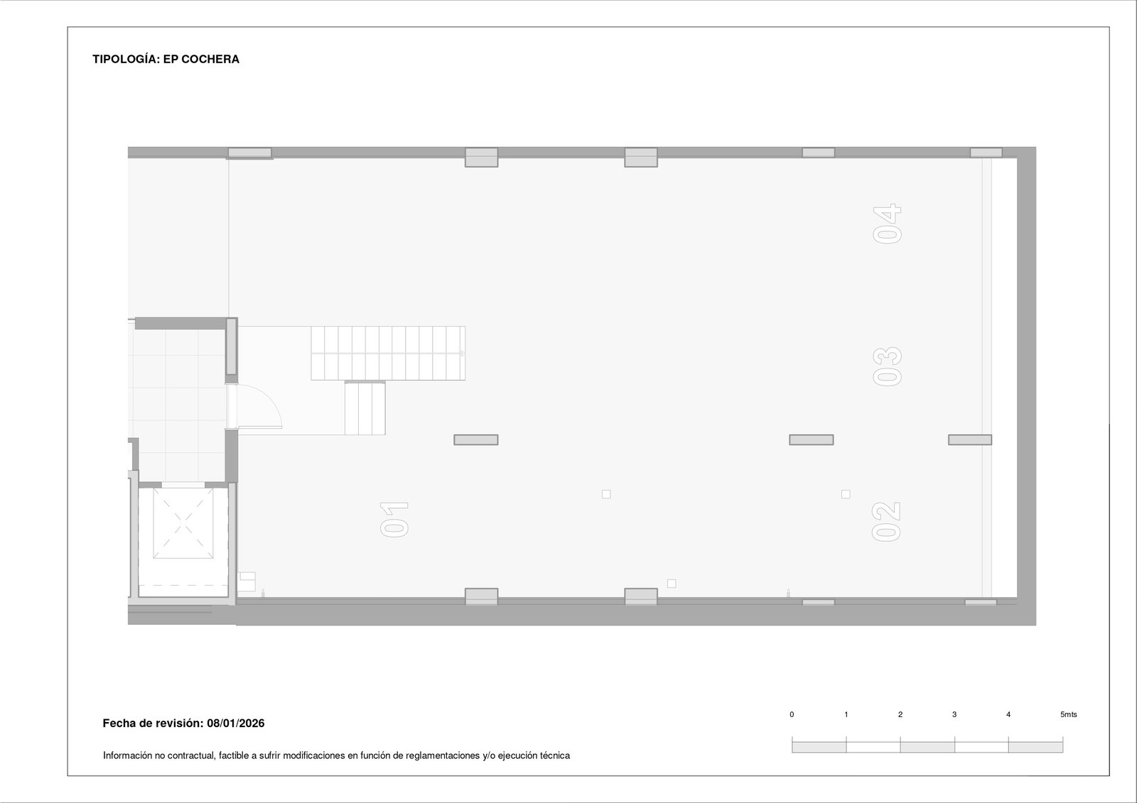
EP00-03-01Espacio p/Estacionar Espacio p/Estacionar Interno13 M213 M2 VER PLANTA
EP00-03-02Espacio p/Estacionar Espacio p/Estacionar Interno13 M213 M2 VER PLANTA
EP00-03-03Espacio p/Estacionar Espacio p/Estacionar Interno13 M213 M2 VER PLANTA
EP00-03-04Espacio p/Estacionar Espacio p/Estacionar Interno13 M213 M2 VER PLANTA
¿Querés saber más sobre este proyecto?