AQUILONIA
1434
m² construidos
Vivienda
Tipología
En ejecución
Estado
10
Cantidad de pisos
Proyecto y ejecución de edificio de 10 pisos ubicado en el corazón del barrio Abasto, precisamente en la esquina de Corrientes y Riobamba. El proyecto cuenta con unidades de 1 y 2 dormitorios y amplios pisos exclusivos de 3 dormitorios, todas con extensos balcones y ventilación cruzada. En su azotea posee una terraza con quincho de uso común equipado con parrillas, cocina y baños. AQUILONIA: aire de barrio, vida de ciudad.

UNIDADES
PISOUNIDADTIPO DE UNIDADORIENTACIÓNM2 CUBIERTOSM2 TOTALESPLANTA
101-012 Dormitorios 2 Dormitorios Riobamba48 M255 M2 VER PLANTA
101-021 Dormitorio 1 Dormitorio Corrientes36 M247 M2 VER PLANTA
202-022 Dormitorios 2 Dormitorios Corrientes55 M270 M2 VER PLANTA
303-012 Dormitorios 2 Dormitorios Riobamba48 M260 M2 VER PLANTA
404-022 Dormitorios 2 Dormitorios Corrientes55 M270 M2 VER PLANTA
606-022 Dormitorios 2 Dormitorios Corrientes55 M270 M2 VER PLANTA
707-013 Dormitorios 3 Dormitorios Corrientes y Riobamba84 M2105 M2 VER PLANTA
808-022 Dormitorios 2 Dormitorios Corrientes55 M270 M2 VER PLANTA
9013 dormitorios 3 dormitorios Corrientes y Riobamba84105 VER PLANTA
1010-022 Dormitorios 2 Dormitorios Corrientes55 M270 M2 VER PLANTA
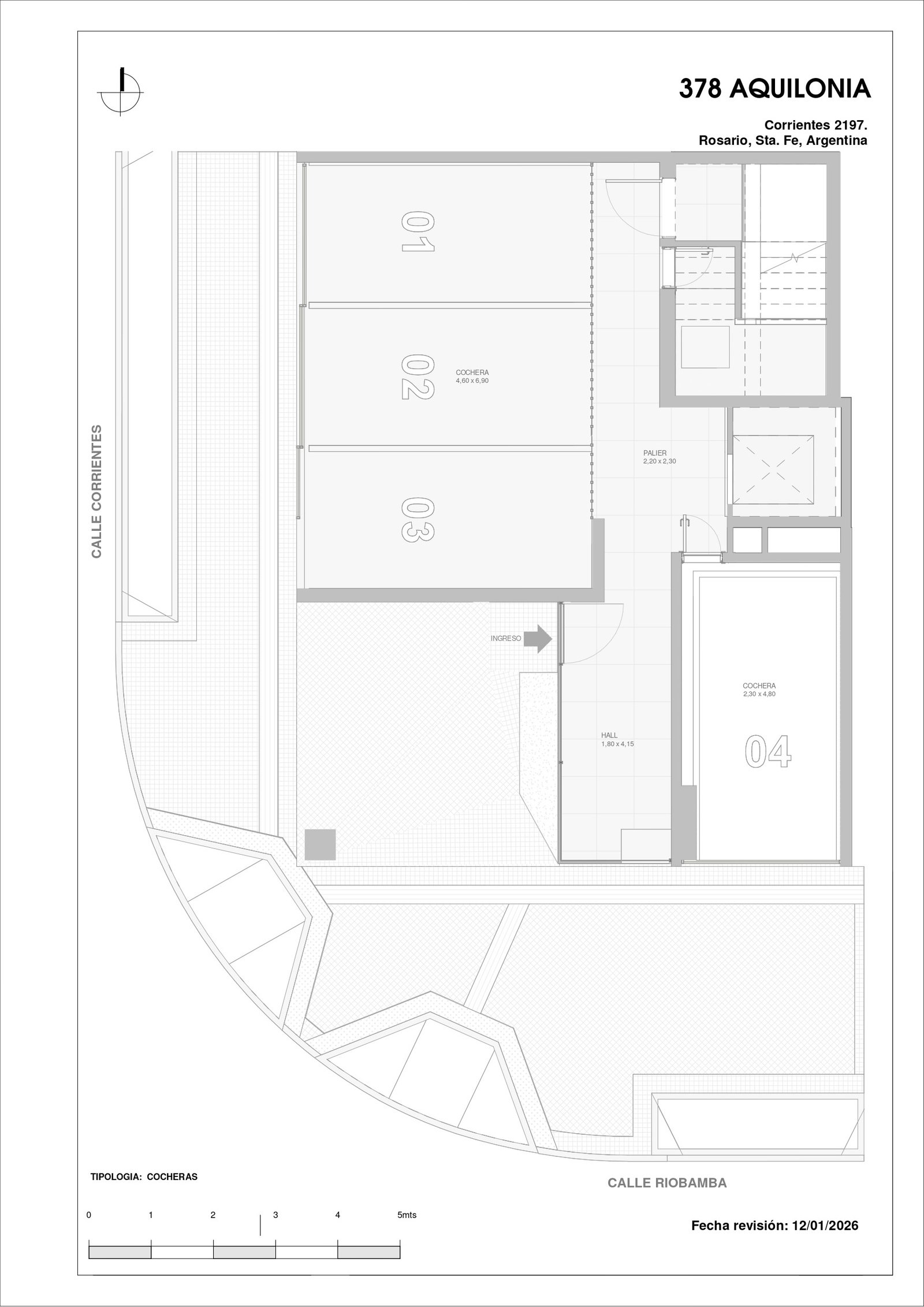
PB00-01Espacio p/Estacionar Espacio p/Estacionar Corrientes11 M211 M2 VER PLANTA
PB00-02Espacio p/Estacionar Espacio p/Estacionar Corrientes11 M211 M2 VER PLANTA
PB00-03Espacio p/Estacionar Espacio p/Estacionar Corrientes11 M211 M2 VER PLANTA
PB00-04Espacio p/Estacionar Espacio p/Estacionar Riobamba11 M211 M2 VER PLANTA
¿Querés saber más sobre este proyecto?